proyectos

Vivienda MP

Vivienda unifamiliar
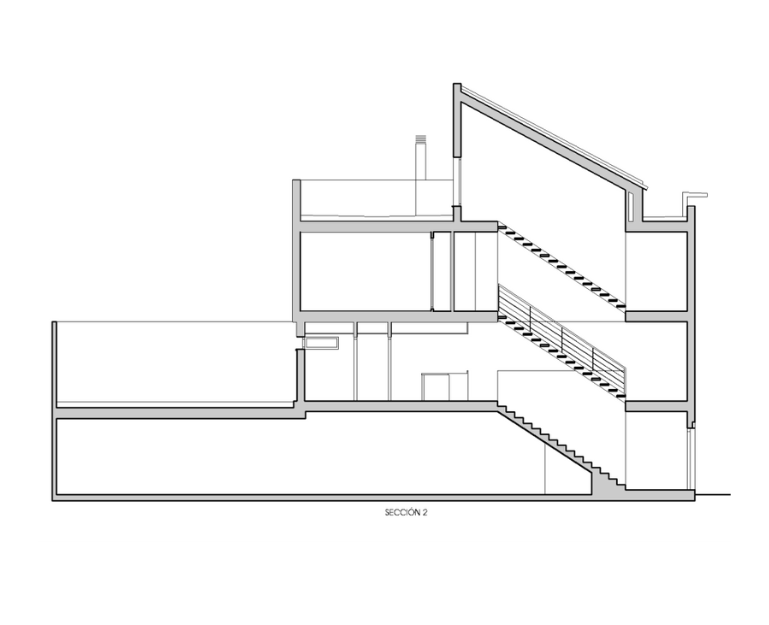
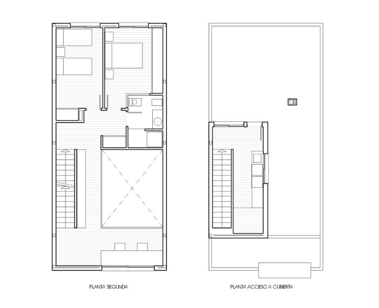
Vivienda unifamiliar entre medianeras. La agrupación en una sola pieza de salón, comedor y cocina permite reducir los espacios de circulación en planta primera, que cuenta con doble orientación a la calle y a la terraza interior, parcialmente cubierta, lo que facilita la ventilación cruzada. Se crea una doble altura sobre la zona del salón, vinculada a la zona de estudio de la planta superior, aportando sensación de amplitud. La doble altura se refleja en la composición de la fachada, y se enfatiza con un remate.