proyectos

Vivienda DM

Ampliación y rehabilitación
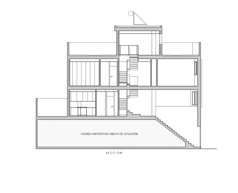
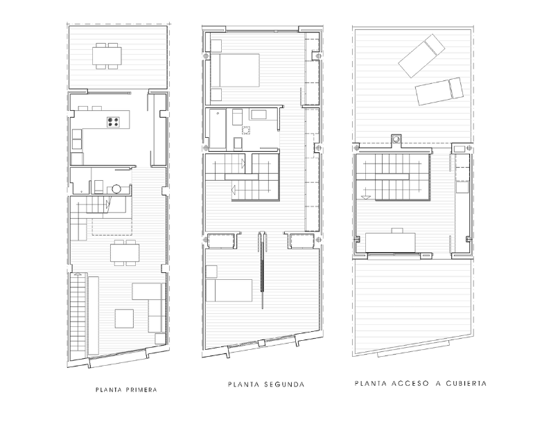
El proyecto consiste en la ampliación en altura de una vivienda ubicada en la planta primera del inmueble. Se pretende reformar la planta existente y elevar dos plantas más. Se presentan dos problemas importantes: por un lado, la planta baja del inmueble pertenece a otro propietario, por lo que no se pueden reforzar los soportes de la estructura. Por otro lado, la estructura existente es a base de muros de carga y pilares de ladrillo, por lo que hay que calcular el dintel del gran hueco central que se abre en el muro de carga como un elemento estructural, y comprobar que con el incremento de carga por la ampliación no se sobrepasa la tensión admisible de los soportes de ladrillo puesto que no se pueden reforzar. Se opta por aligerar al máximo el edificio adoptando estructura métalica, bovedillas de porexpan y tabiquería de yeso laminado, además de demoler cuidadosamente las diferentes capas de pavimento existentes tanto la primera planta como en la cubierta preexistente.