proyectos

Edificio PF

Ampliación y rehabilitación
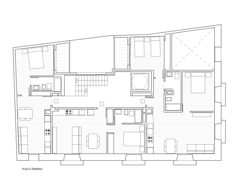
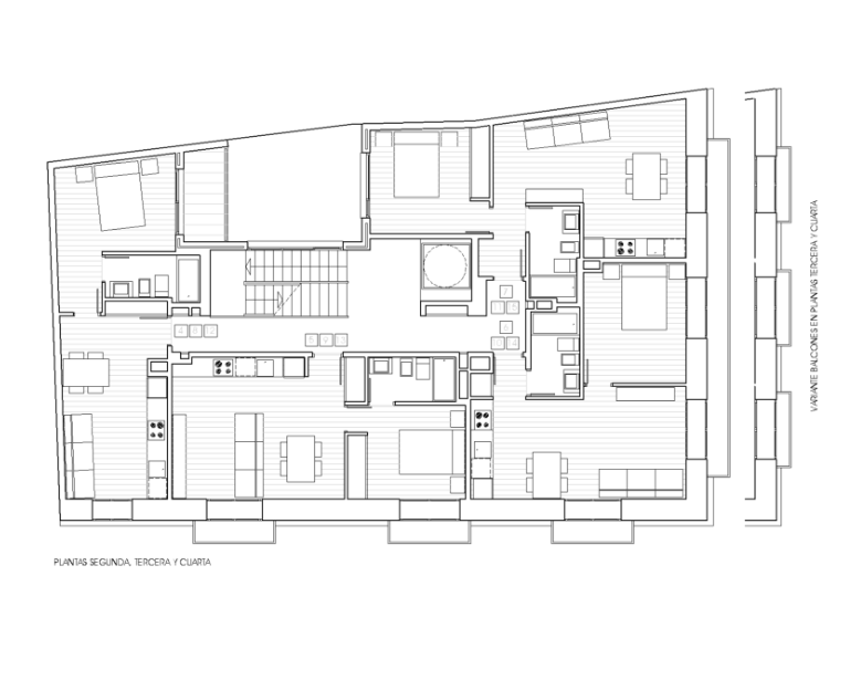
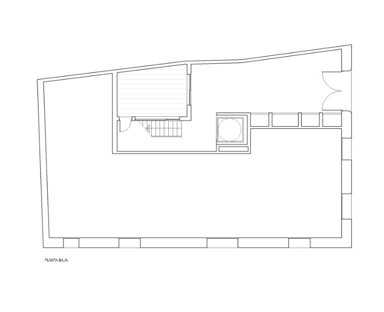
El edificio se encuentra en el centro histórico y cuenta con un nivel de protección que obliga a mantener la fachada. Estructuralmente está muy deteriorado por lo que se opta por vaciarlo interiormente. Esto plantea un problema, puesto que la instalación de estabilizadores de fachada cortaría totalmente el tráfico de las dos calles y además implica un sobrecoste importante al tener que alquilar el sistema de estabilizadores. Se opta por estabilizar las fachadas desde dentro, realizando la estructura con perfiles de acero. Tras demoler la cubierta se realiza la parte de la losa de cimentación correspondiente a los pilares y se colocan éstos en toda su longitud. Posteriormente, a la vez que se realizan las excavaciones arqueológicas, se inicia la demolición de arriba hacia abajo y se colocan las nuevas vigas de cada planta a medida que se va demoliendo el forjado antiguo, de modo que las fachadas siempre están arriostradas bien por la estructura nueva o bien por la estructura antigua. Una vez alcanzado el nivel de planta baja se termina la losa de cimentación y se inicia la ejecución de los forjados de chapa colaborante y losas de escalera