proyectos

Edificio DR

Edificio de vivienda
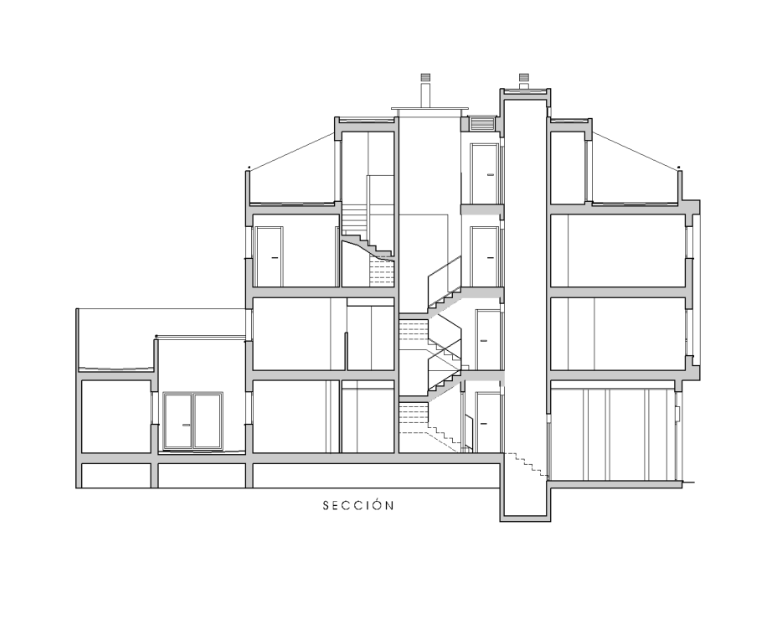
Edificio realizado en una parcela entre medianeras con reducidas dimensiones. Se realizan tres viviendas, una de ellas tipo dúplex. Cada una de las viviendas cuenta con una terraza descubierta. La escalera se ilumina y ventila cenitalmente, evitando así colocarla en fachada o crear otro patio de luces que redujera el aprovechamiento del solar