proyectos

Adosados VL

Edificio de vivienda
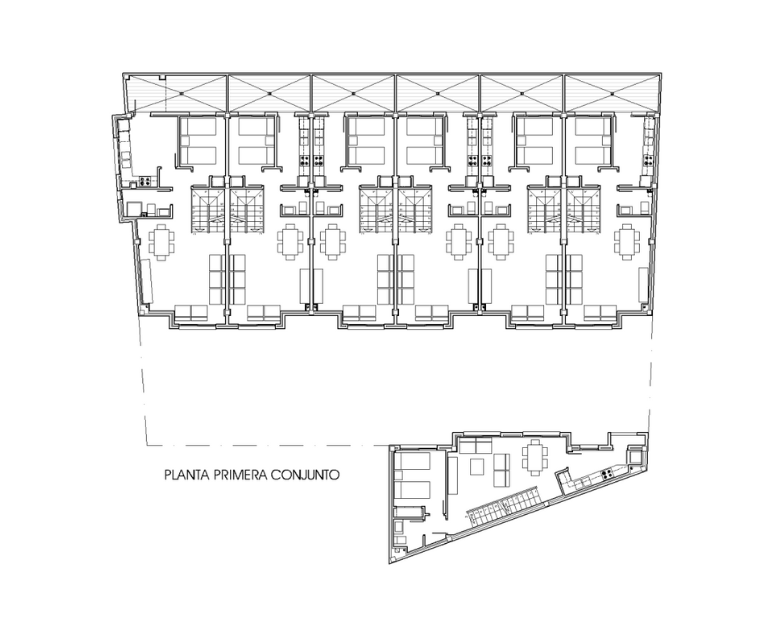
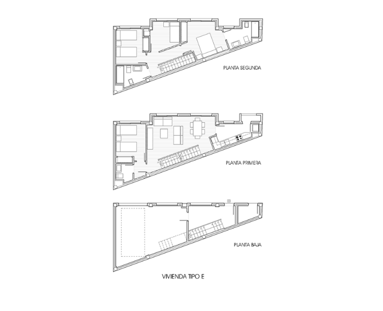
El conjunto se ubica en un solar irregular, más ancho por la parte del fondo que por la fachada. Se opta por crear un vial interior de modo que se disponen seis viviendas adosadas y otra independiente. El programa es el mismo para todas las viviendas: planta baja para garaje y accesos, planta primera con cocina, salón comedor, aseo y un dormitorio y planta segunda con tres dormitorios y dos baños.